トップページ > 米沢市窪田町窪田 

販売物件情報

  • お気に入りリストを見る
  • 物件情報を印刷する
  • プリンタの設定で「背景を印刷する」と設定しないと「背景画像」が印刷されないことがあります。印刷の際には、必ず「背景を印刷する」設定にしてください。

中古一戸建て 注目!

米沢市窪田町窪田 

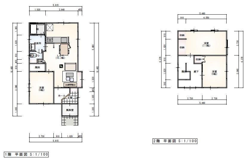
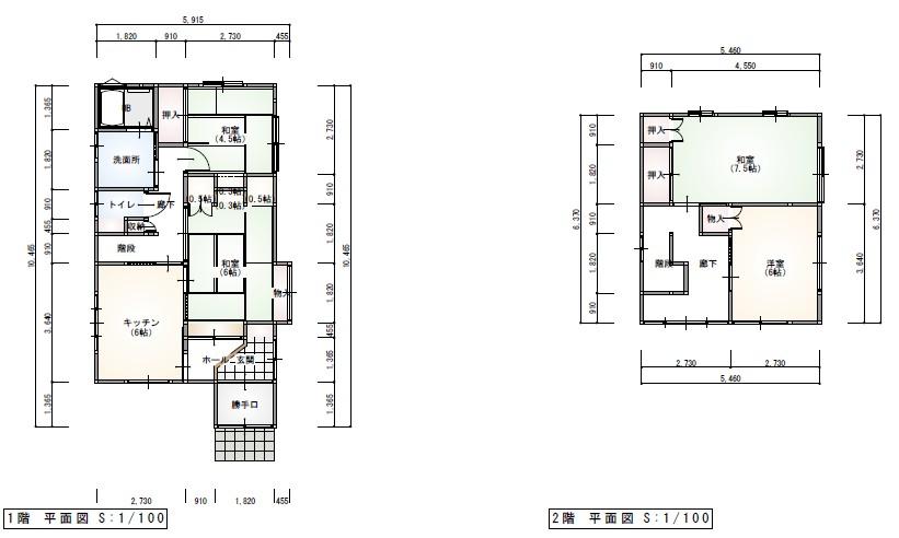
画像

この物件のお支払い例

頭金0円/ボーナス払い0円

物件価格1,999万円

月々の支払い55,272

※上記支払例の借入条件:金利0.875%、借入総額1,999万円、借入期間35年

セールスポイント

売主につき仲介手数料不要


所在地・交通

所在地 米沢市窪田町窪田 
最寄駅 JR奥羽本線 置賜 徒歩分数 36分
最寄バス停 徒歩分数
小学校校区 米沢市立窪田小学校 中学校校区 米沢市立第四中学校

※学校区は住所から自動判定したものであり、保証できる情報ではございません。正確な学校区はお問い合わせ下さい。

お問い合わせフォームはこちら

※地図上の「対象地」は「〒992-0003 山形県米沢市窪田町窪田」の場所を指しています。実際の場所ではない場合がございます。詳しくはお問い合わせください。

お問い合わせフォームはこちら

物件概要

価格 1,999万円 種目 中古一戸建住宅
間取り 3LDK 間取り内訳
土地面積 278.53㎡ 私道面積
建物面積 85.28㎡ 建物構造規模 木造 2階建
築年月(竣工月) 2006年01月 駐車場  
建ぺい率/容積率 60%/200% 都市計画
接道状況 南3.5m 接面7.6m  西12m 接面12.3m   
地目
土地権利 所有権 地勢
用途地域 工業地域
現況 取引態様 売主
建築確認番号 平成17年8月29日交付第81号

取引条件等

引渡し 期日指定 2026年02月

その他

設備 温水洗浄便座、システムキッチン、カウンターキッチン、IHクッキングヒーター、洗髪洗面化粧台、浄化槽、駐車場3台分
特徴 建築確認完了検査済証、瑕疵保証付(不動産会社独自)、土地50坪以上、内装リフォーム、南側道路面す、閑静な住宅地、LDK15畳以上、角地、整形地、庭10坪以上、2階建、浴室に窓、節水型トイレ、全居室フロ
諸条件・相談 セットバック
情報登録日 2025年11月4日 情報更新予定日 2026年3月19日
物件番号 12176
この物件を見た人の多くは下記の物件も見ています!
米沢市大字下新田  [1,299万円] [5LDK]
米沢市松が岬3丁目  [1,880万円] [4LDK]
米沢市西大通1丁目  [1,699万円] [5LDK]
米沢市金池6丁目  [1,250万円] [6SLDK]
最近見た物件

ページの先頭へ

Copyright (C) 山形不動産ナビ, All Rights Reserved.