トップページ > 米沢市下花沢3丁目 

販売物件情報

  • お気に入りリストを見る
  • 物件情報を印刷する
  • プリンタの設定で「背景を印刷する」と設定しないと「背景画像」が印刷されないことがあります。印刷の際には、必ず「背景を印刷する」設定にしてください。

中古一戸建て

米沢市下花沢3丁目 

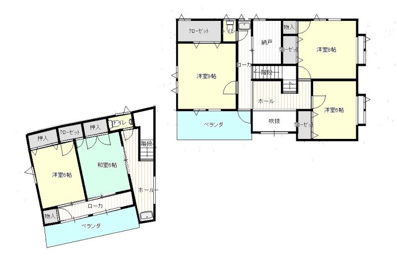
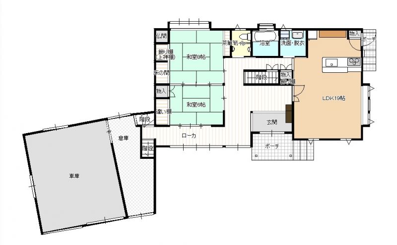
画像

この物件のお支払い例

頭金0円/ボーナス払い0円

物件価格1,500万円

月々の支払い41,475

※上記支払例の借入条件:金利0.875%、借入総額1,500万円、借入期間35年

中古+リフォームのお支払い例

プラン
頭 金 万円

月々のお支払い51,146

ボーナス払い0円


※上記支払例の借入条件:金利0.875%、借入総額1,849万円、借入期間35年

セールスポイント

広々とした延床面積257.36㎡の居室空間、更に何も置かなくても心のゆとりになる庭のある住まいが暮らしにスペースと心にゆとりをつくります。


所在地・交通

所在地 米沢市下花沢3丁目 
最寄駅 JR山形新幹線 米沢 徒歩分数 15分
最寄バス停 徒歩分数
小学校校区 米沢市立東部小学校 中学校校区 米沢市立第一中学校

※学校区は住所から自動判定したものであり、保証できる情報ではございません。正確な学校区はお問い合わせ下さい。

お問い合わせフォームはこちら

※地図上の「対象地」は「〒992-0023 山形県米沢市下花沢3丁目」の場所を指しています。実際の場所ではない場合がございます。詳しくはお問い合わせください。

お問い合わせフォームはこちら

物件概要

価格 1,500万円 種目 中古一戸建住宅
間取り 7SLDK 間取り内訳
土地面積 494.94㎡ 私道面積 59.5㎡
建物面積 257.36㎡ 建物構造規模 木造 2階建
築年月(竣工月) 1998年08月 駐車場  
建ぺい率/容積率 60%/200% 都市計画 未線引区域
接道状況 南7m 公道 接面36m  東6.6m 公道 接面12m  北2.0m 公道 接面16m  三方道路
地目
土地権利 所有権 地勢
用途地域 第一種住居地域
現況 空家 取引態様 売主
建築確認番号

取引条件等

引渡し 相談

その他

設備 トイレ2ヶ所、電気、プロパンガス、上水道、下水道、駐車場2台分
特徴 日当り良好
諸条件・相談
情報登録日 2025年7月28日 情報更新予定日 2025年10月26日
物件番号 11716
この物件を見た人の多くは下記の物件も見ています!
米沢市通町8丁目  [1,649万円] [5LDK]
米沢市花沢町1丁目  [1,900万円] [3DK]
米沢市大字花沢  [1,985万円] [10DK]
米沢市東大通1丁目  [1,179万円] [4LDK]
最近見た物件

ページの先頭へ

Copyright (C) 山形不動産ナビ, All Rights Reserved.