トップページ > 東置賜郡高畠町大字山崎 

販売物件情報

  • お気に入りリストを見る
  • 物件情報を印刷する
  • プリンタの設定で「背景を印刷する」と設定しないと「背景画像」が印刷されないことがあります。印刷の際には、必ず「背景を印刷する」設定にしてください。

土地

東置賜郡高畠町大字山崎 

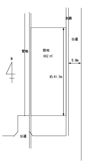
画像

この物件のお支払い例

頭金0円/ボーナス払い0円

物件価格1,200万円

月々の支払い33,180

※上記支払例の借入条件:金利0.875%、借入総額1,200万円、借入期間35年

土地+新築セットのお支払い例

建物プラン
頭 金 万円

月々のお支払い70,286

ボーナス払い0円


※上記支払例の借入条件:金利0.875%、借入総額2,542万円、借入期間35年
※市街化調整区域など諸条件によりご希望の建物が建設できない場合がございます。予めご了承ください。

セールスポイント

JR高畠駅まで徒歩約3分!通勤・通学に便利です♪ 周辺に商業施設も多く生活に便利な立地! 閑静な住宅街、子育てにおすすめな環境です!


所在地・交通

所在地 東置賜郡高畠町大字山崎 
最寄駅 JR奥羽本線 高畠駅 徒歩分数 3分
最寄バス停 徒歩分数
小学校校区 中学校校区 高畠町立高畠中学校

※学校区は住所から自動判定したものであり、保証できる情報ではございません。正確な学校区はお問い合わせ下さい。

お問い合わせフォームはこちら

※地図上の「対象地」は「〒999-2173 山形県東置賜郡高畠町山崎」の場所を指しています。実際の場所ではない場合がございます。詳しくはお問い合わせください。

お問い合わせフォームはこちら

物件概要

価格 1,200万円 種目 売地
土地面積 662㎡ 私道面積
建ぺい率/容積率 70%/200% 都市計画 未線引区域
接道状況 東5m 公道    
地目
土地権利 所有権 地勢 平坦
用途地域 無指定
現況 取引態様 媒介

取引条件等

引渡し 相談

その他

条件等
設備
諸条件・相談
情報登録日 2025年7月25日 情報更新予定日 2025年10月15日
物件番号 11705
最近見た物件

ページの先頭へ

Copyright (C) 山形不動産ナビ, All Rights Reserved.