トップページ > 米沢市御廟3丁目 

販売物件情報

  • お気に入りリストを見る
  • 物件情報を印刷する
  • プリンタの設定で「背景を印刷する」と設定しないと「背景画像」が印刷されないことがあります。印刷の際には、必ず「背景を印刷する」設定にしてください。

中古一戸建て

米沢市御廟3丁目 

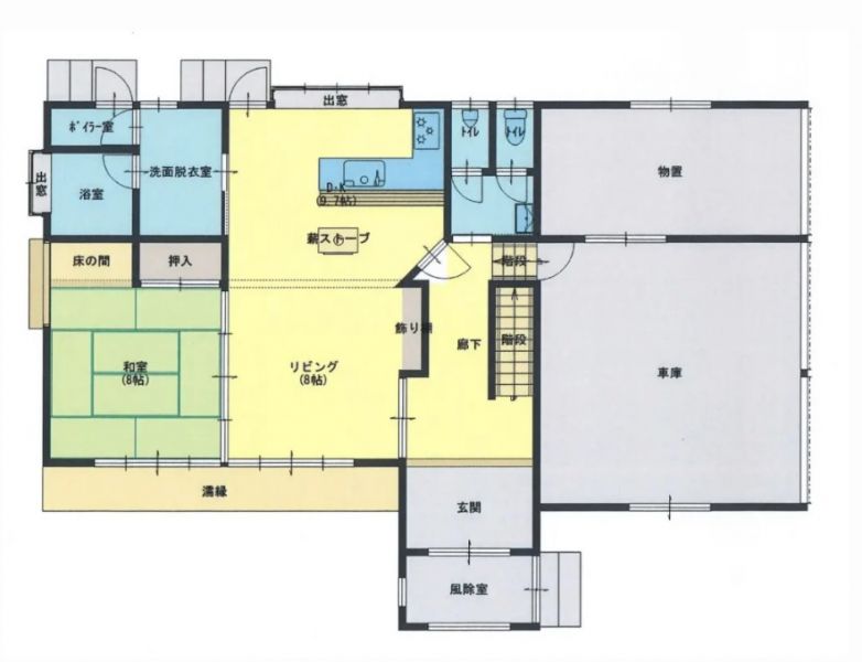
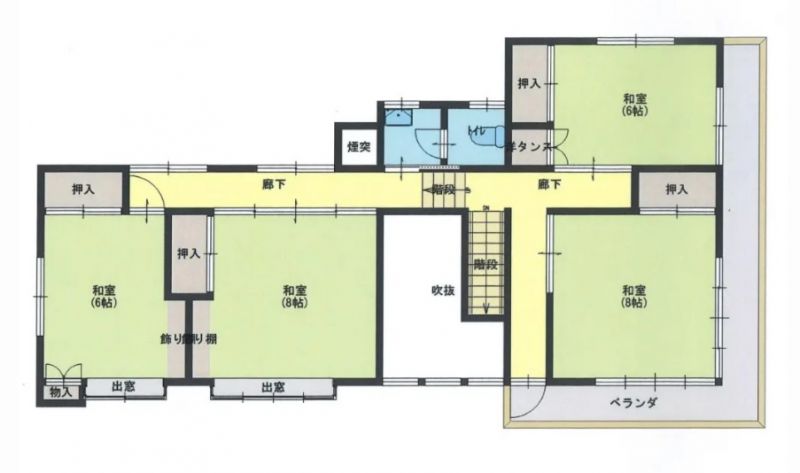
画像

この物件のお支払い例

頭金0円/ボーナス払い0円

物件価格1,450万円

月々の支払い40,092

※上記支払例の借入条件:金利0.875%、借入総額1,450万円、借入期間35年

中古+リフォームのお支払い例

プラン
頭 金 万円

月々のお支払い49,764

ボーナス払い0円


※上記支払例の借入条件:金利0.875%、借入総額1,799万円、借入期間35年

セールスポイント

薪ストーブ付きのお家です! 愛宕小学校に隣接し、保育園・中学校も徒歩10分圏内! 商業施設も道路向かいにあり生活便利な好立地です♪


所在地・交通

所在地 米沢市御廟3丁目 
最寄駅 JR米坂線 西米沢駅 徒歩分数
最寄バス停 愛宕小前 徒歩分数 2分
小学校校区 米沢市立愛宕小学校 中学校校区 米沢市立第二中学校

※学校区は住所から自動判定したものであり、保証できる情報ではございません。正確な学校区はお問い合わせ下さい。

お問い合わせフォームはこちら

※地図上の「対象地」は「〒992-0055 山形県米沢市御廟3丁目」の場所を指しています。実際の場所ではない場合がございます。詳しくはお問い合わせください。

お問い合わせフォームはこちら

物件概要

価格 1,450万円 種目 中古一戸建住宅
間取り 6DK 間取り内訳
土地面積 334.11㎡ 私道面積
建物面積 195.38㎡ 建物構造規模 木造 2階建
築年月(竣工月) 1989年06月 駐車場 有 
建ぺい率/容積率 60%/200% 都市計画 未線引区域
接道状況 北東20m 公道 接面16.5m    
地目 宅地
土地権利 所有権 地勢
用途地域 第一種住居地域
現況 空家 取引態様 媒介
建築確認番号

取引条件等

引渡し 相談

その他

設備 トイレ2ヶ所、照明器具、電気、上水道、下水道、駐車場2台分
特徴 日当り良好、吹抜
諸条件・相談 ボイラー・2階トイレ便座・浴室混合水栓は要交換
情報登録日 2025年6月19日 情報更新予定日 2026年1月21日
物件番号 11555
この物件を見た人の多くは下記の物件も見ています!
米沢市太田町5丁目  [1,098万円] [4LDK]
米沢市松が岬3丁目  [1,880万円] [4LDK]
米沢市御廟3丁目  [1,849万円] [5SLDK]
米沢市林泉寺3丁目  [1,999万円] [4LDK]
最近見た物件

ページの先頭へ

Copyright (C) 山形不動産ナビ, All Rights Reserved.